Skip to content
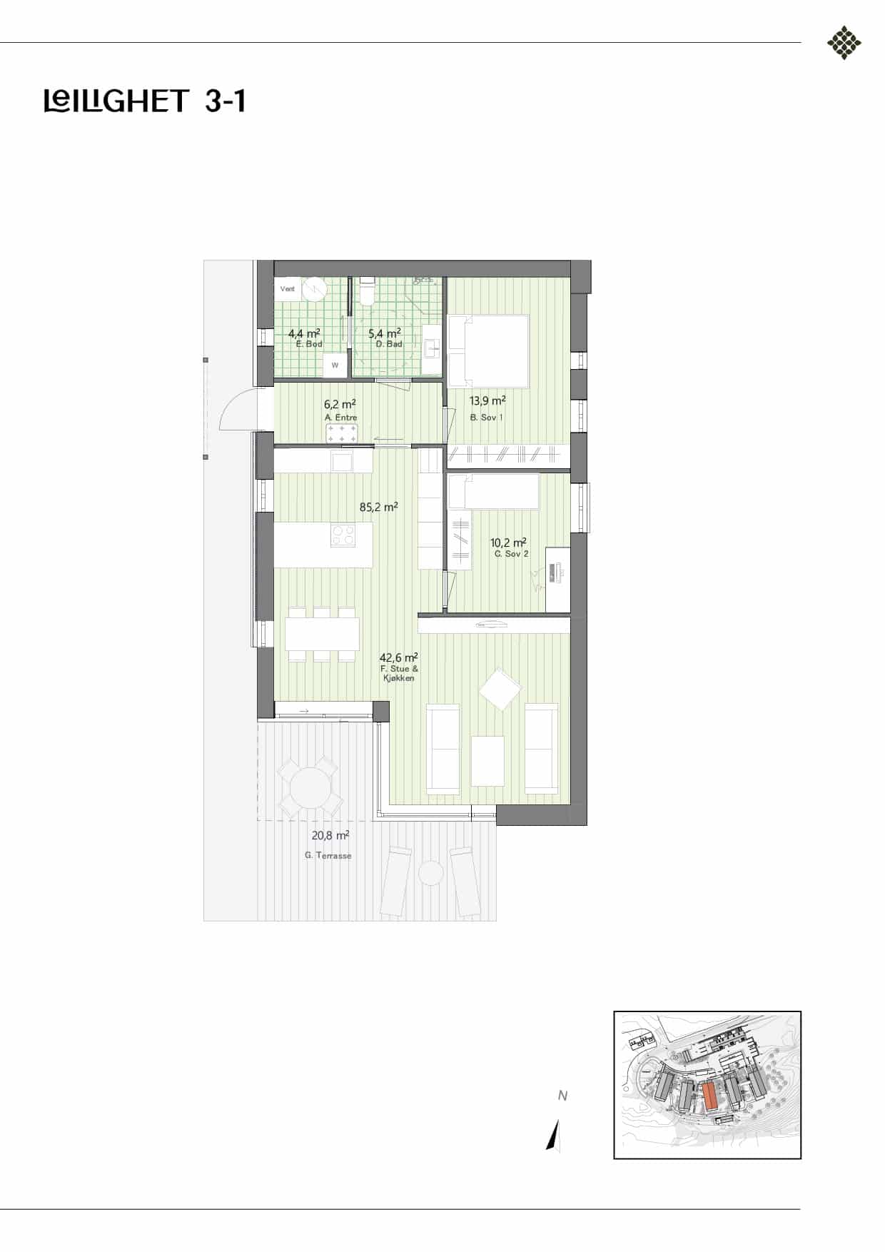
Leilighet 3-1
Play
Plan
1
BRA
85 m
2
Antall Soverom:
2
Terrasse
20.8 m
2
Sportsbod
5 m
2
Status:
Solgt
Parkering
Det følger med 2 p-plasser til hver bolig.
En fast plass i carport med opplegg for El- bil lading + 1 utvendig p-plass.
Vil du vite mer om prosjektet?
Meld din interesse her
Kontakt megler
Lena Leikvoll
Tlf.
480 81 361
E-post.
lena.leikvoll@em1sr.no